Успейте купить коммерческое помещение
График работы
8 мая с 08:00 до 18:00 9 мая                выходной 10 мая с 10:00 до 18:00 11 мая с 10:00 до 18:00 12 мая с 08:00 до 18:00

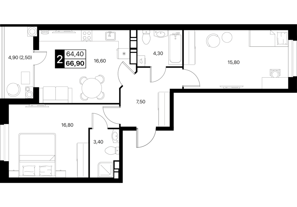
Планировка № 149

Сдача в III кв. 2026
Литер 47.2
3 подъезд
9 этаж
66,4 м²
8684456 ₽

Варианты отделки

Зеленый баланс

Серая гармония

Бежевый уют

Изумрудная классика

Элегантно серый

Теплая эстетика

Природная палитра

Воздушный комфорт

Умный минимализм

Зеленый баланс

Популярный стиль, в основу которого положено использование природных оттенков. Для тех, кто стремится создать индивидуальную гармонию с пространством.

  • Жилые комнаты
  • Кухня
  • Прихожая
  • Санузел
Состав комплекта (позиции и количество) и смета подстраиваются под выбранную планировку.

Серая гармония

Холодные оттенки пастельных тонов серого и голубого создают атмосферу минимализма. Такой стиль открывает возможности: расставьте цветовые акценты с помощью мебели или сохраните интерьер монохромным.

  • Жилые комнаты
  • Кухня
  • Прихожая
  • Санузел
Состав комплекта (позиции и количество) и смета подстраиваются под выбранную планировку.

Бежевый уют

Обновленная интерпретация классического стиля - для ценителей светлых и теплых тонов, качественных материалов отделки и интерьерных решений.

  • Жилые комнаты
  • Кухня
  • Прихожая
  • Санузел
Состав комплекта (позиции и количество) и смета подстраиваются под выбранную планировку.

Изумрудная классика

Неоклассический стиль для ценителей подлинной элегантности, где роскошь встречается со сдержанностью. Пространство строится на светлой палитре, благородных материалах и акцентных деталях, которые создают безупречный баланс великолепия и гармонии.

  • Жилые комнаты
  • Кухня
  • Прихожая
  • Санузел
Состав комплекта (позиции и количество) и смета подстраиваются под выбранную планировку.

Элегантно серый

Минимализм, доведенный до совершенства. Этот интерьер построен на безупречном качестве отделки и сложной гамме темных оттенков, которые превращают пространство в стильную приватную зону.

  • Жилые комнаты
  • Кухня
  • Прихожая
  • Санузел
Состав комплекта (позиции и количество) и смета подстраиваются под выбранную планировку.

Теплая эстетика

Теплая эстетика - Обновленная интеграция классического стиля - для ценителей теплых тонов. Оттенки бежевого вызывают ассоциации с натуральным деревом, кожей, землей и помогают расслабиться.

  • Жилые комнаты
  • Кухня
  • Прихожая
  • Санузел
Состав комплекта (позиции и количество) и смета подстраиваются под выбранную планировку.

Природная палитра

В основе этого варианта - использование натуральных оттенков. Для тех, кто стремится быть ближе к природе. Кроме того, зеленый - самый комфортный цвет для нашей психики.

  • Жилые комнаты
  • Кухня
  • Прихожая
  • Санузел
Состав комплекта (позиции и количество) и смета подстраиваются под выбранную планировку.

Воздушный комфорт

Вечная классика переосмысленная в духе времени. Легкость светлых оттенков и роскошь материалов служат идеальным фоном для выразительных акцентов, формируя атмосферу утонченной сдержанности.

  • Жилые комнаты
  • Кухня
  • Прихожая
  • Санузел
Состав комплекта (позиции и количество) и смета подстраиваются под выбранную планировку.

Умный минимализм

Холодные оттенки пастельных тонов серого и голубого четко соответствует концепции умного дома. Вы можете расставить цветовые акценты с помощью мебели или сохранить интерьер монохромным.

  • Жилые комнаты
  • Кухня
  • Прихожая
  • Санузел
Состав комплекта (позиции и количество) и смета подстраиваются под выбранную планировку.
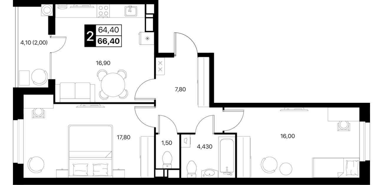
Итоговая стоимость

9 140 300 ₽

Жилой квартал: «Эстет»
2-комнатная квартира: 66,4 м²
Стилистика ремонта: Комфорт+

Качественный ремонт за 75 дней

Я даю согласие на обработку персональных данных и принимаю условия политики конфиденциальности